Проект перепланировки и переустройства помещений | Архитектор Мария Горохова

Проект перепланировки и переустройства помещений

Архитектор Мария Горохова

Обязательный документ для согласования перепланировки в инстанциях. Разрабатываю проект с учётом всех норм и требований безопасности.

Заказать проект
Листайте

Что такое проект перепланировки?

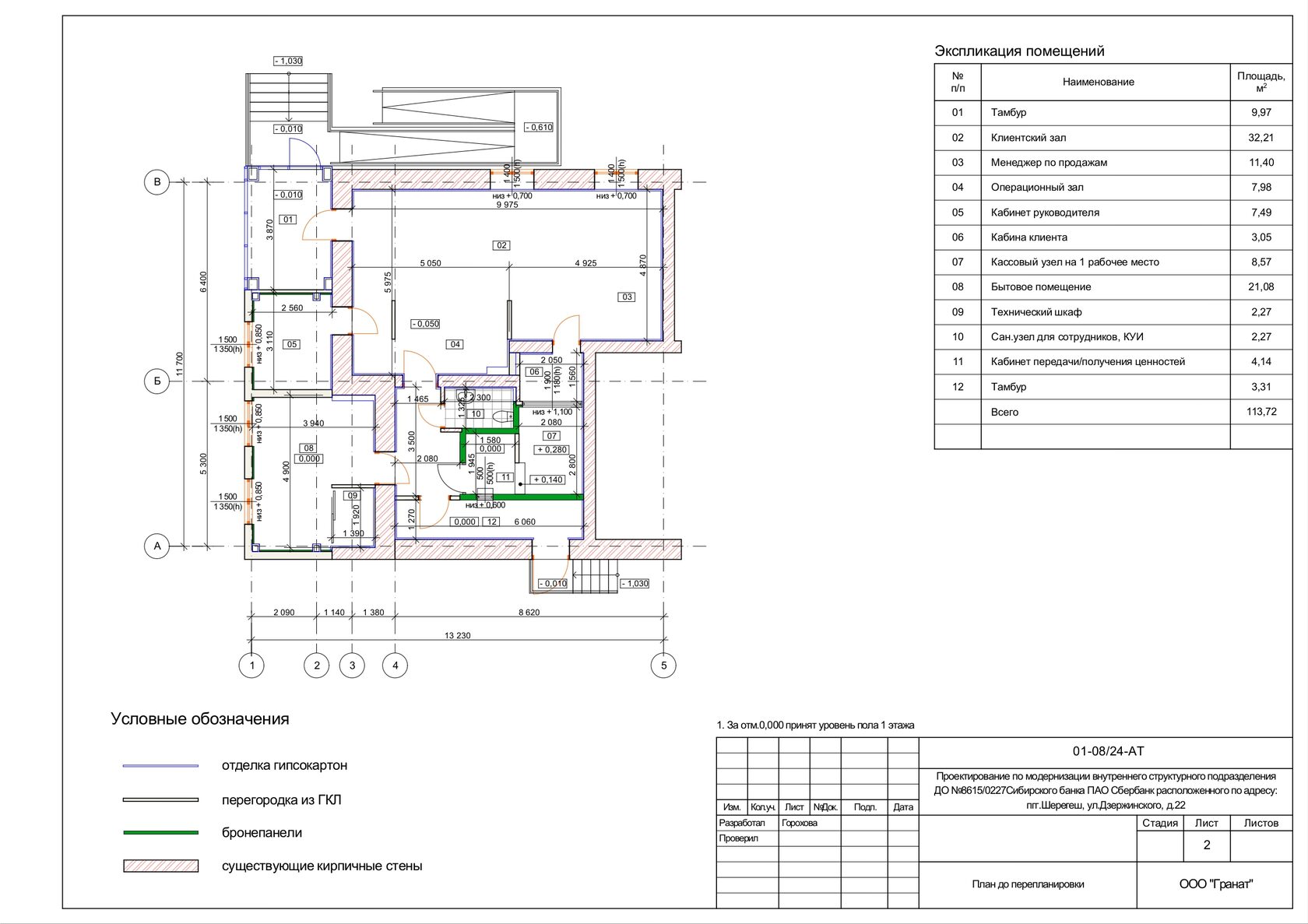
Документ, необходимый для получения разрешения и согласования изменений в квартире или нежилом помещении

Проект перепланировки и/или переустройства – это обязательный документ, необходимый для получения разрешения на перепланировку. Проект необходим для согласования планируемых мероприятий в инстанциях города, которые должны убедиться в безопасности перепланировки для окружающих, не нарушает ли она прав соседей и соответствует ли требованиям законодательства. В проекте отражаются все планируемые изменения относительно существующего плана БТИ.

Какие виды работ мы включаем в проект

Разделяем понятия перепланировки и переустройства для точного соответствия нормам

Перепланировка

  • Снос и монтаж ненесущих перегородок
  • Устройство проемов в ненесущих перегородках, в том числе преобразование в арки
  • Заделка дверных проемов в перегородках и ненесущих стенах
  • Устройство проемов в несущих стенах и перекрытиях
  • Замена или установка дополнительного инженерного оборудования без изменения стояков
  • Устройство лестниц
  • Монтаж перегородок и стен, при котором увеличивается нагрузка на перекрытия
  • Устройство (перенос) туалетов, ванных комнат и кухонь
  • Установка дополнительного оборудования, увеличивающая нагрузку на общедомовые сети

Переустройство

  • Перестановка сантехнических приборов в габаритах санузлов и кухонь
  • Перенос электроплиты
  • Перенос приборов центрального отопления
  • Установка дополнительного инженерного оборудования (душевая кабина, джакузи, биде и т.п.)
  • Демонтаж инженерного оборудования (при условии сохранения стояков водоснабжения и канализации)
  • Замена или установка дополнительного инженерного оборудования, увеличивающая энерго-, водопотребление
  • Замена технологического, инженерного и сантехнического оборудования (под новое функциональное назначение помещения)

Стоимость разработки проекта

от 200 ₽ за квадратный метр

Точная цена рассчитывается индивидуально после изучения плана БТИ и объёма изменений.

Почему стоит заказать проект у меня

Опыт, знание норм и полное сопровождение

Соответствие нормам

Проект разрабатывается с учётом всех строительных, санитарных и противопожарных требований. Гарантия успешного согласования.

Работа с планами БТИ

Точно отражаю существующее положение и все планируемые изменения. Проект готов к подаче в жилищную инспекцию.

Быстро и без ошибок

18 лет опыта позволяет избежать типичных ошибок, из‑за которых отказывают в согласовании.

Помощь в согласовании

Консультирую по сбору документов, отвечаю на запросы инспекций, вношу корректировки при необходимости.

Часто задаваемые вопросы о перепланировке

Ответы на то, что важно знать перед началом

Нужно ли узаконивать перепланировку, если я просто меняю отделку?
Если вы не меняете конфигурацию стен, не переносите сантехнику и инженерные сети — согласование не требуется. Но любые изменения в плане (снос/возведение перегородок, перенос «мокрых зон») требуют проекта и разрешения.
С чего начать, если я хочу сделать перепланировку?
Первым делом закажите технический паспорт БТИ (поэтажный план и экспликацию). Затем мы встречаемся, обсуждаем желаемые изменения, и я разрабатываю проект.
Сколько времени занимает разработка проекта?
Обычно 5–10 рабочих дней в зависимости от сложности и количества изменений.
Что входит в готовый проект?
Пояснительная записка, планы до и после перепланировки, чертежи узлов (при необходимости), спецификация материалов, ведомость отделки и заключение о соответствии нормам.
Вы помогаете с подачей документов в жилищную инспекцию?
Я даю подробные консультации, отвечаю на запросы инспекции и вношу правки в проект, если это требуется. Но официальная подача обычно осуществляется собственником или доверенным лицом.
Можно ли согласовать уже сделанную перепланировку?
Да, это возможно. Процедура сложнее, но я могу разработать проект на фактическое состояние и помочь с легализацией (в пределах допустимых норм).

Готовы начать согласование перепланировки?

Свяжитесь со мной для бесплатной консультации. Обсудим ваш план БТИ и желаемые изменения.

Загрузить файлы (чертежи, планы, референсы)
Нажмите для выбора файлов или перетащите их сюда
Нажимая на кнопку, вы даете согласие на обработку персональных данных и соглашаетесь c политикой конфиденциальности
Error get alias