Продолжая использовать сайт, вы соглашаетесь на обработку файлов cookie и Политикой обработки персональных данных
Ок
2-этажный кирпичный дом в Зеленой поляне | Архитектор Мария Горохова

2х этажный кирпичный
жилой дом

д.н.т. «Зеленая поляна», НСО

Концепция проекта: функциональность, эстетическая привлекательность и устойчивость к различным климатическим условиям. Современный стиль, продуманное зонирование и энергоэффективность.

Исследовать проект
Листайте

Современный стиль для комфортной жизни

Архитектура выполнена в современном стиле по желанию заказчика, с учётом особенностей участка и ориентации по сторонам света

Этот дом сочетает функциональность, эстетическую привлекательность и устойчивость к различным климатическим условиям. В проекте учтены современные требования к зонированию, естественной освещенности и энергоэффективности, создавая комфортное и стильное пространство для жизни.

Габариты здания: 16,85 × 12,45 м (в осях), максимальная высота — +7,1 м. Этажность: 2 этажа. Высота 1 этажа: 3,0 м.

Функциональность

Чёткое зонирование: приватная зона (спальни, кабинет) и общая (кухня-гостиная). Интеграция с существующим гаражом, две открытые террасы.

Эстетика

Современный архитектурный стиль с большими окнами, обеспечивающими отличную освещённость и связь с природой.

Энергоэффективность

Продуманная ориентация по сторонам света, эффективные ограждающие конструкции, рациональное использование естественного света.

Планировочные решения

Продуманная организация пространства для максимального комфорта

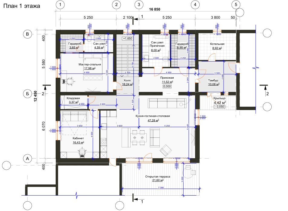
Первый этаж

▪ Крыльцо под навесом
▪ Тамбур с выходами в гараж, котельную и дом
▪ Прихожая и гардеробная
▪ Санузел, совмещенный с прачечной
▪ Мастер-спальня
▪ Кабинет
▪ Просторная кухня-гостиная-столовая с выходом на террасу
▪ Кладовая
▪ Лестница на второй этаж

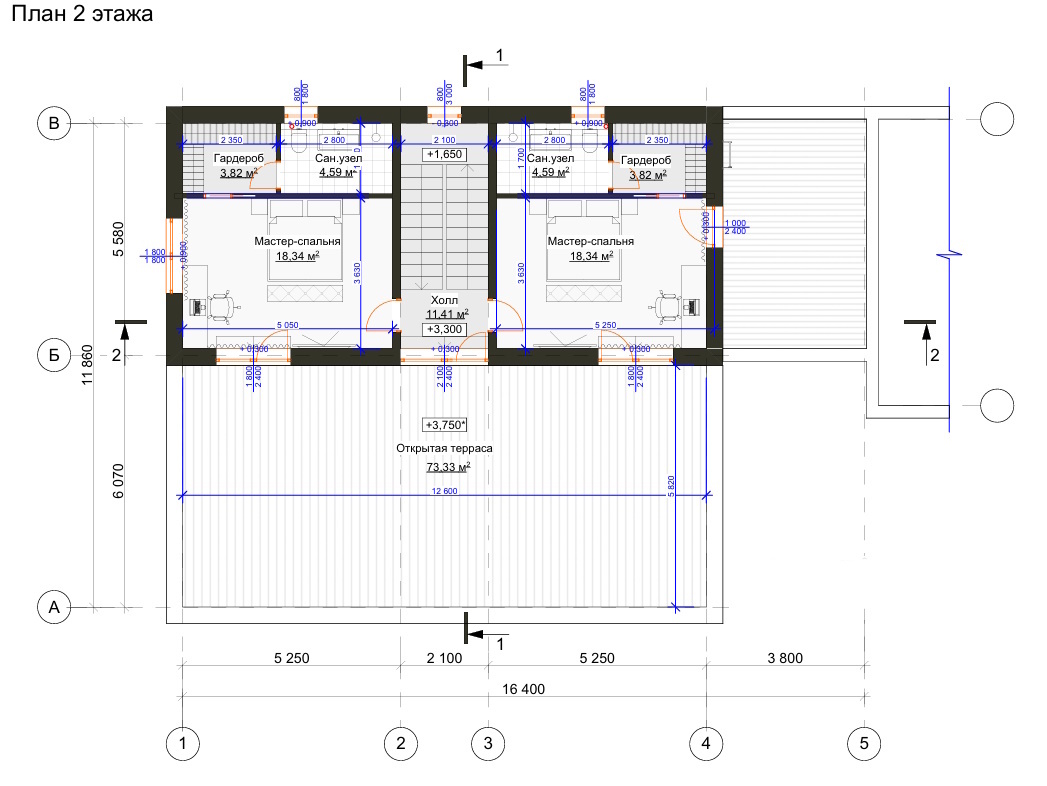
Второй этаж

▪ Две мастер-спальни
▪ Холл с выходом на открытую террасу

Особенности проекта

Детали, делающие этот дом уникальным

Интеграция с гаражом

Удобный доступ из тамбура в гараж на 2 автомобиля.

Две открытые террасы

На первом и втором этажах для отдыха и единения с природой.

Большие окна

Обеспечивают отличную освещенность и визуально расширяют пространство.

Другие мои проекты

Примеры реализованных работ и текущих проектов из моей архитектурной практики

Обсудим ваш проект

Готова создать уникальный архитектурный проект, соответствующий вашим потребностям и участку

Архитектор
Мария Горохова

Email
mail@gorochova.com
Часы работы
Пн-Пт: 10:00–19:00
Консультации по предварительной записи
Нажимая на кнопку, вы даете согласие на обработку персональных данных и соглашаетесь c политикой конфиденциальности